生產800~400目重鈣粉制備技術及工藝
- 字號 + -
(1)歐版磨機
歐版磨機系統為閉路系統,是黎明重工自助開發的第四代磨機產品,是在國產雷蒙磨和擺式磨的基礎上引進現代科技理念,潛心開發出的擁有多項自主專利技術的新型粉磨設備(專利號: ZL 2009 2 0088889.8, ZL 2009 2 0092361.8, ZL 2009 2 0089947.9)。自投放市場以來,性能穩定、客戶口碑好,通過科學技術成果鑒定。
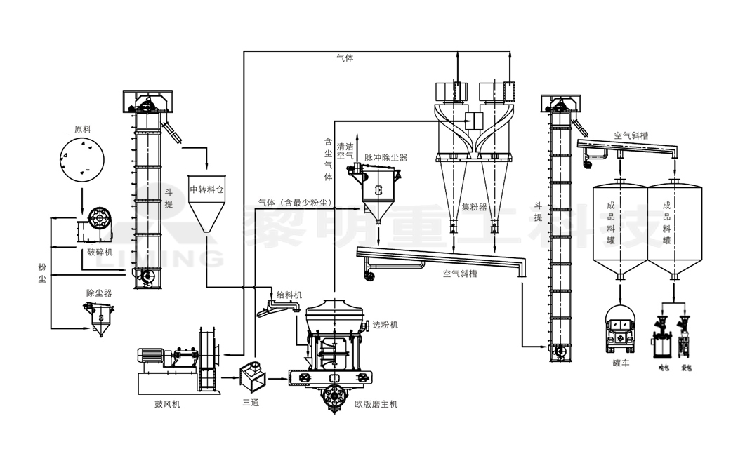
歐版磨粉機作為一種節能裝備,其技術特點是單機生產能力大、易于規模化生產、單位產品能耗低、易于維護等,一次成品細度d97=800~400目(200~38um),單機生產能力依機型不同在6~50T/H,其工藝流程圖見圖.

MTW系列歐版磨粉機成為立式結構,占地面積小,成套性強。主要由主機、風機、選粉機、專用除塵器、旋風集塵器、管道裝置及點擊組成。配套輔助設備可選擇破碎機、提升機、給料機等。
(2)立式磨系統。
黎明重工立式磨系統為開路系統,是結合近年來快速發展的磨粉機技術與中國的工況條件而開發設計的一款大型化、工業化制粉設備,尤其適用于規模化的碳酸鈣粉碎加工,其自動程度高、生產成本低、效率高,一次成品細度d97=200~38um,單機生產能力依機型不同在20~100T/H,其工藝流程圖看圖.

立式磨是利用磨輥與磨盤的相對運動對物料進行料床粉碎,輥壓增加,物料細度變小;磨細的物料靠氣流將其帶起,尤其上面的分離器(分級機)在磨內分級,粗粉落入磨盤重新被粉碎,合格細粉由風送出磨至袋收塵器收集。
立式磨主要由傳動裝置、磨輥與磨盤、分級裝置、加壓和潤滑裝置、機殼與機座等部分組成,見圖4。分級裝置有傳動系統、轉子、導向葉片、粗粉錐斗、出風口組成,是產品質量的關鍵性部件,有動態、動靜態組合多種結構型式。
